For diners who love the idea of having a historical good time on the railway, but don’t want the jostling to spill their drink, a proposed project in downtown Norcross may be just the spot.
Trey Balfour submitted a “pitch deck” presentation to the city’s Historic Preservation Commission for The Airline Belle, a bar built inside an actual 1950s Santa Fe “Hy Fy,” or Hi-Level, lounge car.
Trey, and his wife, Laura, want The Airline Belle to be more than just a bar.
“It’s not a bar, it’s a destination,” the presentation reads.
Trey, a veteran, and Laura, who has design experience, are a local couple with a vision to “create community and conversation,” and create a “unique experience that pays tribute to the golden age of commercial train transportation.”
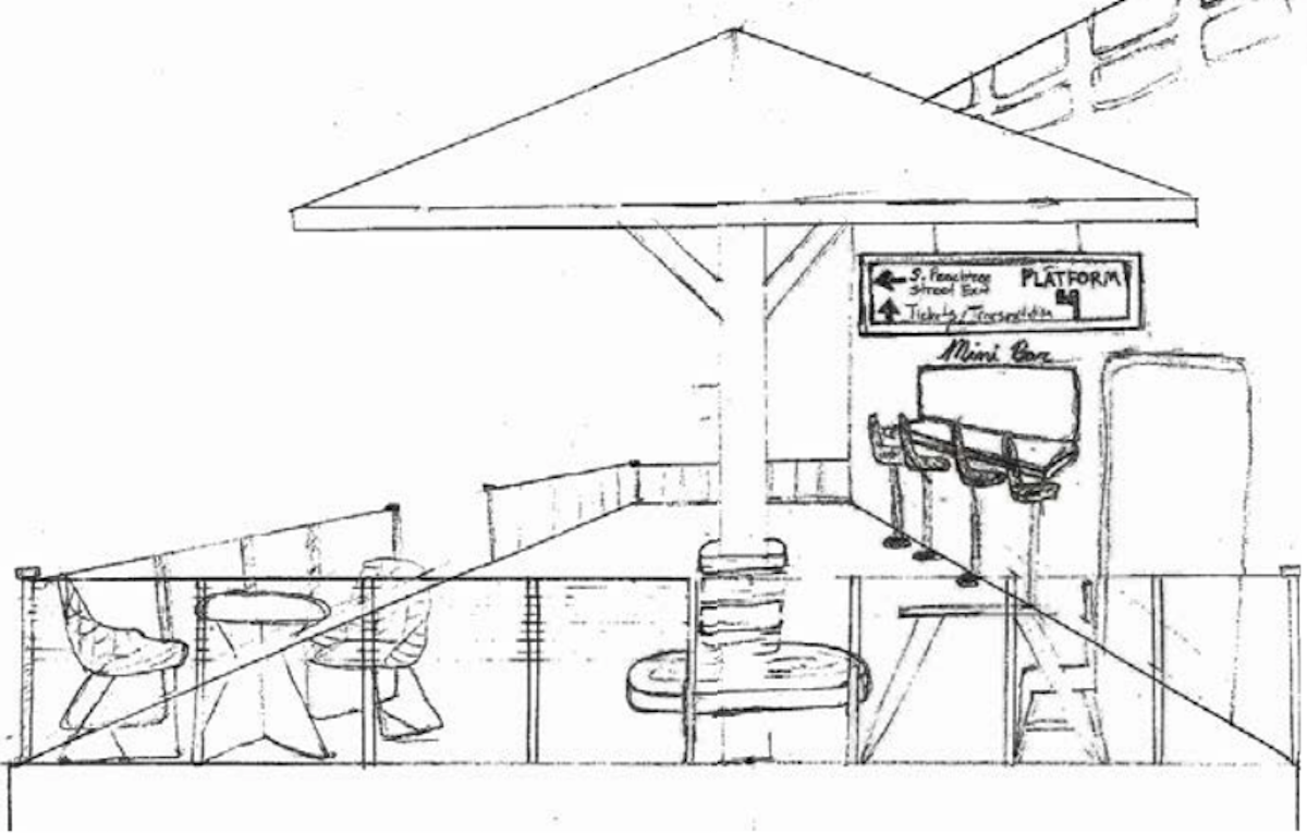
The proposed project includes a patio on the train platform and a skyview lounge.
There are a few potential challenges, Balfour notes in his presentation: The ceiling height is 6 feet, 6 inches on the first floor, and 7 feet, 2 inches on the second; there may an issue with access for 18-wheelers; and the temporary removal of electrical lines during installation.
It also might be a challenge to identify “issues that would be impossible to fix with design solutions,” he noted.
It also promotes the city’s Norcross 2040 vision, by increasing and enhancing the selection of unique local shops and restaurants, helping define Norcross’ “sense of place,” and acting as an attraction for young families.
The Commission is scheduled to meet Wednesday at 6:30 p.m.



Gee that’s exactly what we need. A train car bar? During these times can probably only be occupied by 10 people at a time (if that)
About as appealing as shopping in an Airstream.