UPDATE (October 9, 2018): Urban Pie To Host Grand Reopening Party October 21 Following Extensive Expansion
Urban Pie is expanding after ten years in businesses.
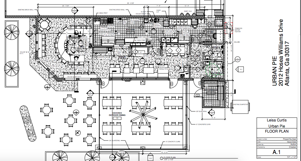
The Kirkwood pizzeria will take over space next door and triple its square footage, according to permits filed in Dekalb County this month.
Owner Lisa Curtis confirmed the news this week in a call with What Now Atlanta (WNA.)
The expansion will cost an estimated $200,000 and will take Urban Pie’s footprint from 728 square feet to approximately 2,000 square feet.
The entirety of the current dining room will become a large “U-shaped bar” and the kitchen will double in size.
The restaurant will keep its large patio and add more “creature comforts” like fans, heaters and a temporary enclosure for cold weather.

The larger kitchen will lead to a larger menu as well.
Ms. Curtis said that after the remodel, the menu will expand to include more appetizers, sandwiches and a completely new offering—pasta.
According to Ms. Curtis, Urban Pie was the first restaurant in the neighborhood.
As more locally-owned restaurants have come to the area, there has been demand from the community for her to expand, she said.
Ms. Curtis is also planning to open two new locations of the pizzeria in the Atlanta-area over the next two years.
Lease negotiations are underway.
Stay tuned to WNA for the new locations as those details become available.



This makes me SO happy! Urban Pie is awesome. We get their spinach salad, Signature pizza and buffalo wings (second best wings in Atlanta behind Vortex). The pizza is on par with Antico and Ammazza. But their service and their people are the best. I always meet cool people there and love their old-school, personal delivery.
Most consistently yummy pizza in Kirkwood OR Decatur! The Jackie O is a fave. Congrats to Lisa and the gang over at Urban Pie. You deserve nothing but success! If you haven’t been, then you owe it to yourself to check them out…hungry just thinking about it 🙂