Atlanta BeltLine Inc. will look to publish a Request for Proposals by 2023 for its newly acquired, 31-acre Chappell Road site in the Bankhead/Historic Westin Heights neighborhood, it said this week.
In a virtual public meeting on Monday, the agency said it will be conducting community engagement and pre-solicitation community meetings through the first quarter of 2022. After that, it plans on releasing a draft RFP for the site in the second or third quarter of next year, with plans to publish a finalized request in the fourth quarter of next year or first quarter of 2023.
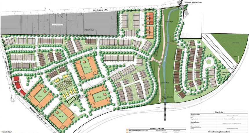
ABI announced in May that it acquired 425 Chappell Road from Brock Built Homes and its affiliates for $25.6 million in its largest real estate acquisition to date.
“The Chappell Road site is of regional significance and will have a profound positive impact on the affordability and job creation promises of the Atlanta BeltLine,” Atlanta BeltLine Inc. CEO Clyde Higgs said at the time. “We will work alongside surrounding neighborhoods to ensure outcomes that benefit residents while furthering connectivity and economic impact within the City of Atlanta.”
Just east of the Grove Park neighborhood, 425 Chappell Road is about half-a-mile south of the Bankhead MARTA Station and also just south of where Microsoft has plans for a 90-acre campus. ABI’s Chappell Road site is also near a planned stretch of the Atlanta BeltLine Westside Trail south of Maddox Park and Westside Park.
ABI’s progress at 425 Chappell Road coincides with development plans for other acquired sites. In April, it issued a new RFP for Murphy Crossing, a 20-acre site in the Oakland City neighborhood.
Its holdings also include a 9.3-acre site at the northeastern corner of Murphy and Avon Avenues in the Oakland City neighborhood.


