The Los Angeles planning department has approved a vesting tentative tract map for a four-story, nine-unit condo project in the Silver Lake neighborhood at the southeastern corner of Maltman Avenue and Marathon Street, according to a determination letter filed by the city of Los Angeles in June.
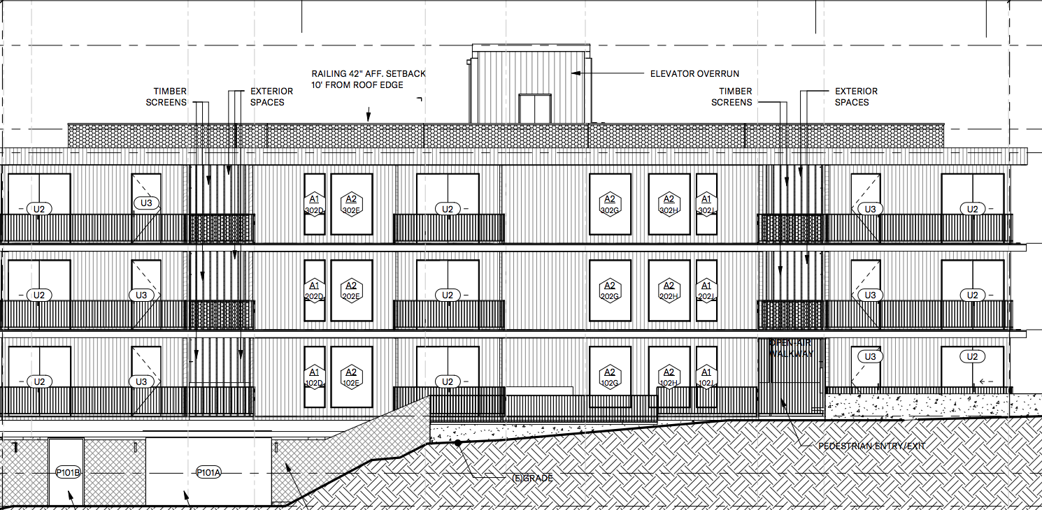
The project will rise to a maximum height of 45 feet in place of a single-family home at 754 Maltman Avenue and hold six one-bedrooms and three two-bedroom for-sale condominiums. It will provide 18 automobile parking spaces in an underground parking garage, as well as 14 bicycle stalls.
Plans also call for about 1,100 square feet of open space made up by private balconies and roughly 800 square feet of common open space at the roof level.
The development is being led by site owner Aaron Von Schaik of Kilkea LA LLC, which acquired the 7,485-square-foot project site for $1.4 million last year, according to Los Angeles County property records.
Vehicle entrance and exit will be given via one common access driveway at the southeastern corner of the project site along Marathon Street.
The project representative is listed as Gary Benjamin of consulting firm Alchemy Planning + Land Use.
